520
Section 4 Construction Systems and Supplemental Drawings
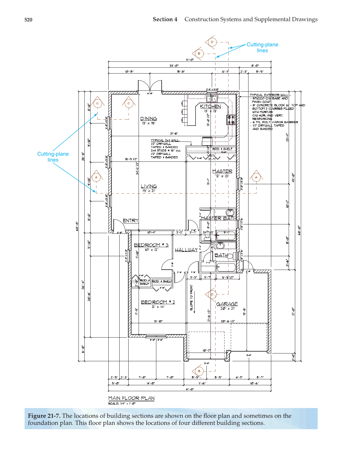
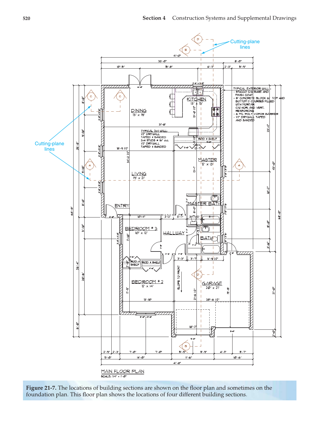
Figure 21-7. The locations of building sections are shown on the fl oor plan and sometimes on the
foundation plan. This fl oor plan shows the locations of four different building sections.
Cutting-plane
lines
Cutting-plane
lines
Previous Page Next Page