292 Section 2 Architectural Planning
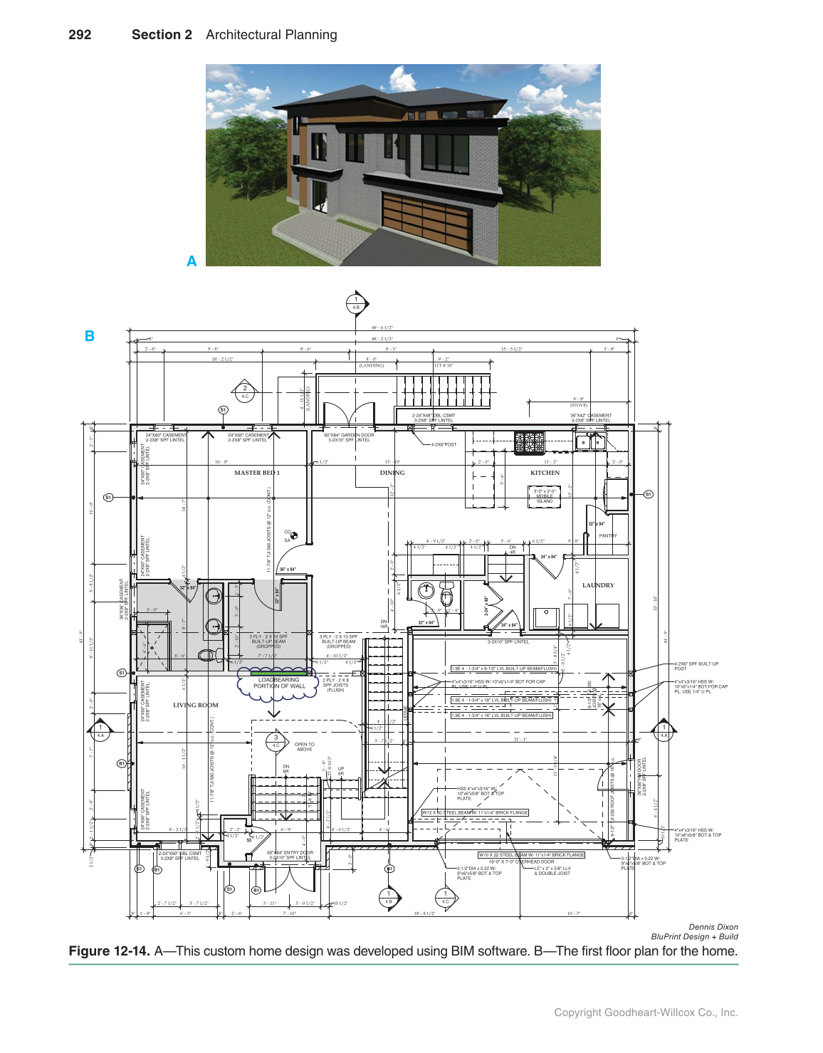
A
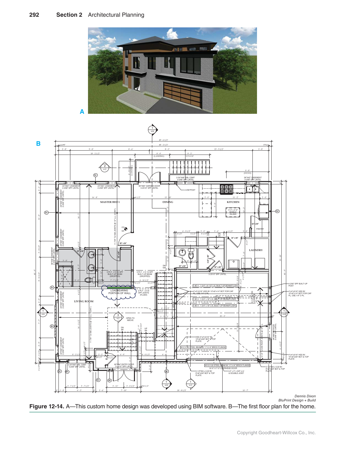
B
Dennis Dixon
BluPrint Design + Build
Figure 12-14. A—This custom home design was developed using BIM software. B—The first floor plan for the home.
Copyright Goodheart-Willcox Co., Inc.
Previous Page Next Page