Chapter
9
Multiview
Drawings
2
33
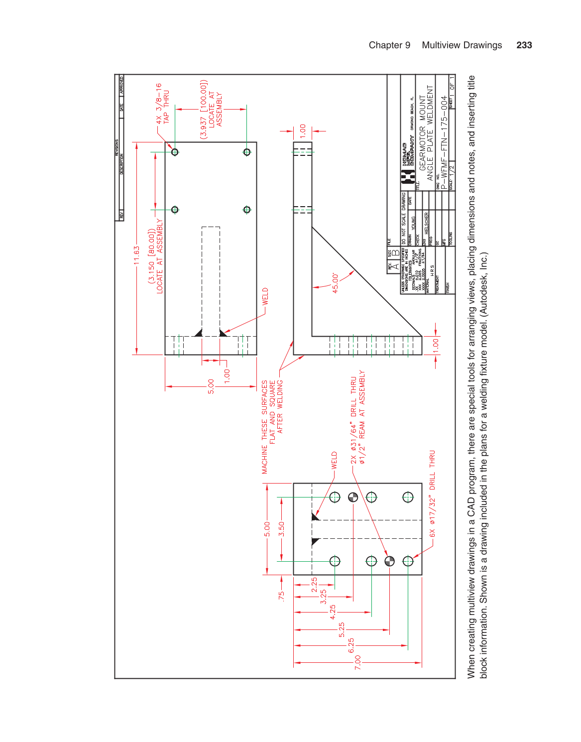
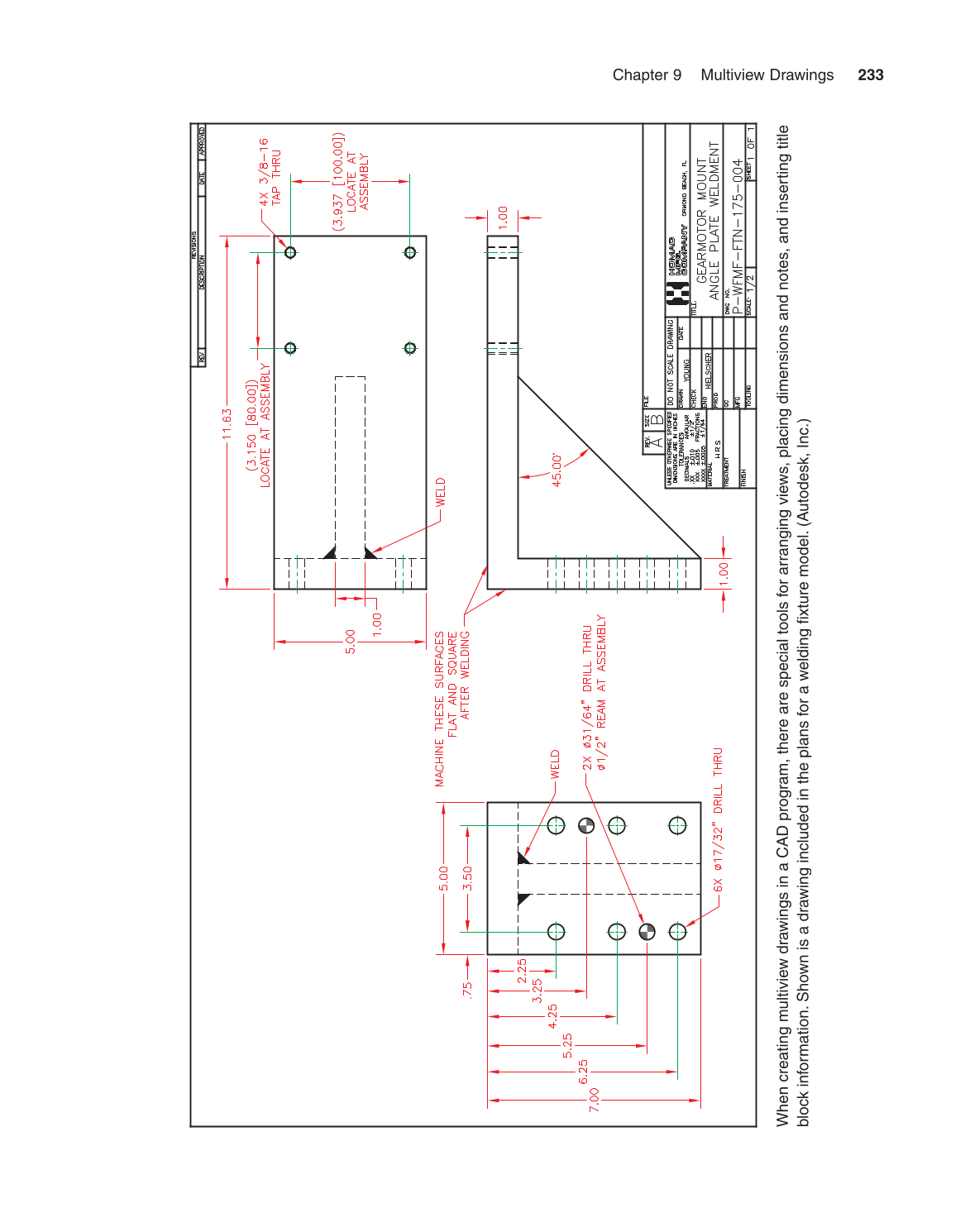
When creating multiview drawings in a CAD program, there are special tools for arranging views, placing dimensions and notes, and inserting title
block information. Shown is a drawingincluded in the plans for a weldingfi xture model. (Autodesk, Inc.)
Previous Page Next Page