296 Section 2 Architectural Planning
B
A
Dennis Dixon
BluPrint Design + Build
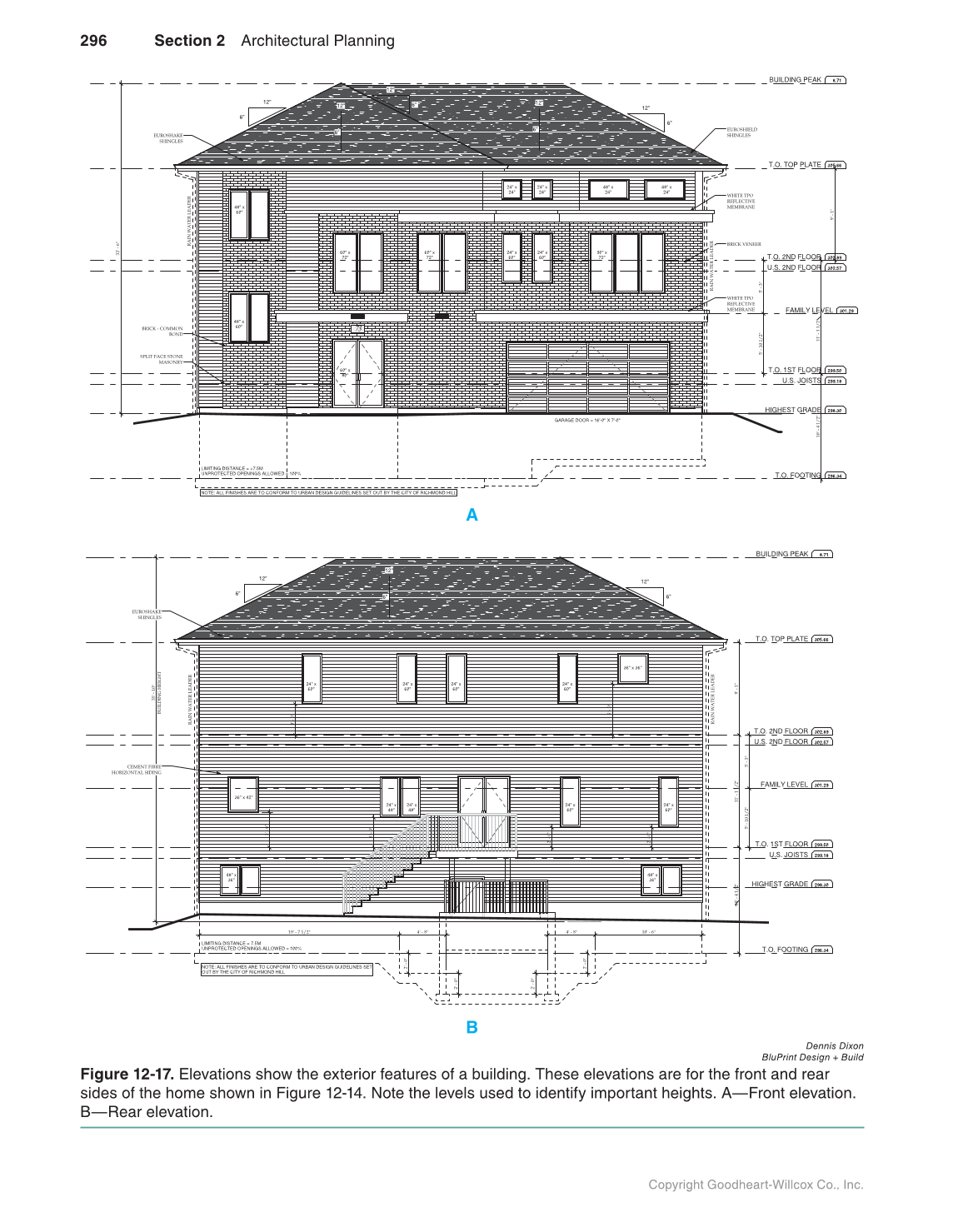
Figure 12-17. Elevations show the exterior features of a building. These elevations are for the front and rear
sides of the home shown in Figure 12-14. Note the levels used to identify important heights. A—Front elevation.
B—Rear elevation.
Copyright Goodheart-Willcox Co., Inc.
Previous Page Next Page