Skip to content
My Bookshelf
Print Reading for Industry, 9th Edition
Page
215
(
215
of
523
)
GO
Unit
11
Machining
Specifications
and
Drawing
Notes
215
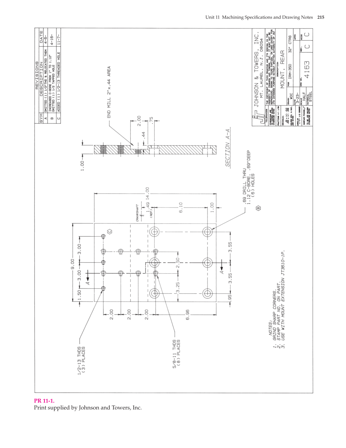
PR
11-1.
Print
supplied
by
Johnson
and
Towers,
Inc.
Previous Page
Next Page
Resources and Downloads
Help
Close
This book
Author, Example
All books
GO
Zoom In
Zoom Out
Contents
Resources
Extract
Help
Printable
Destination page number
Search scope
Search Text