Skip to content
My Bookshelf
Print Reading for Industry, 9th Edition
Page
93
(
93
of
523
)
GO
Unit
5
Multiview
Drawings
93
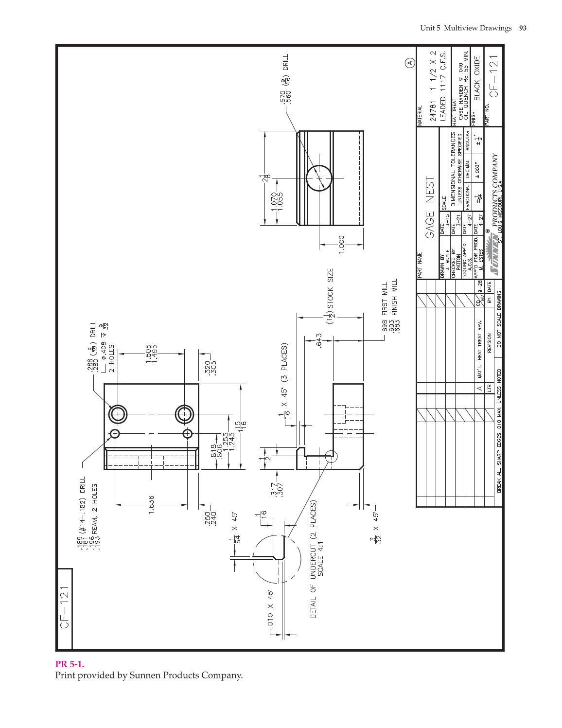
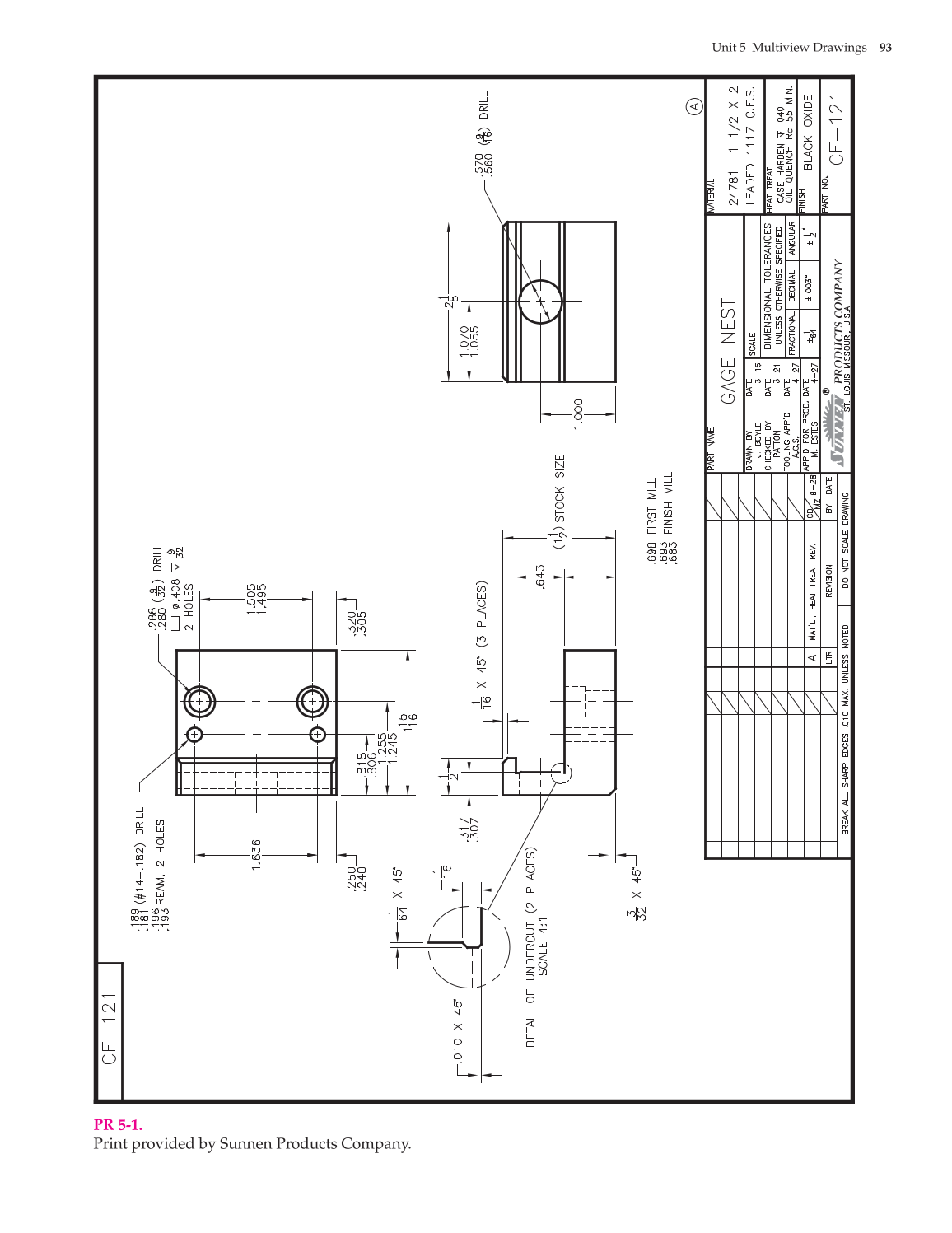
PR
5-1.
Print
provided
by
Sunnen
Products
Company.
Previous Page
Next Page
Resources and Downloads
Help
Close
This book
Author, Example
All books
GO
Zoom In
Zoom Out
Contents
Resources
Extract
Help
Printable
Destination page number
Search scope
Search Text