Unit
9
Architectural
Drawings
157
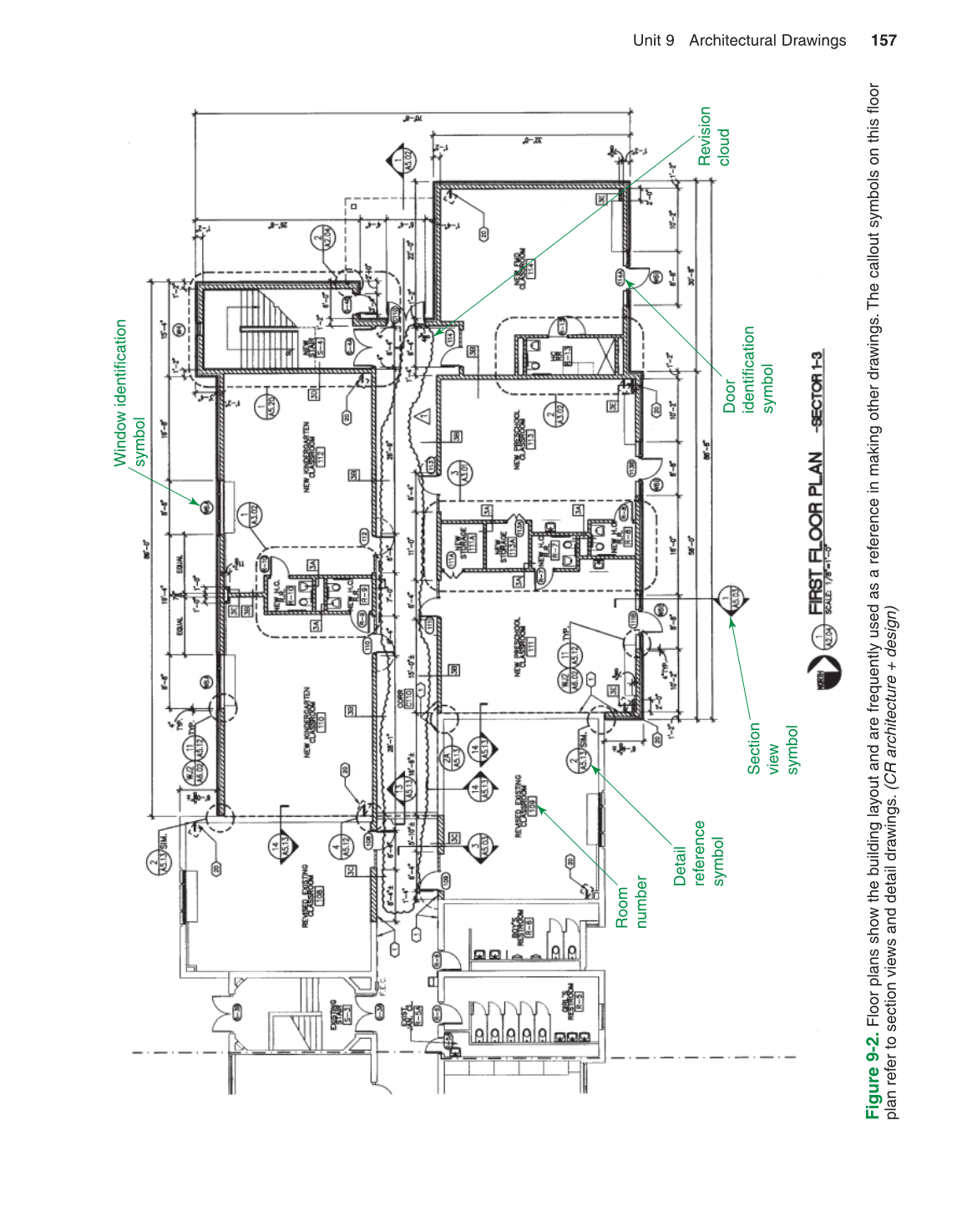
Figure 9-2. Floor plans show the building layout and are frequently used as a reference in making other drawings. The callout symbols on t his fl oor
plan refer to section views and detail drawings. (CR architecture + design)
Window identification
symbol
Room
number
Detail
reference
symbol
Section
view
symbol
Door
identification
symbol
Revision
cloud
Previous Page Next Page