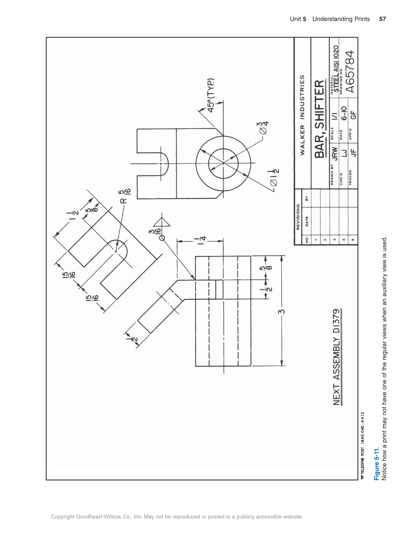
Unit 5 Understanding Prints 57 Copyright Goodheart-Willcox Co., Inc. May not be reproduced or posted to a publicly accessible website. Figure 5-11. Notice how a print may not have one of the regular views when an auxiliary view is used.
Previous Page Next Page