Skip to content
My Bookshelf
Print Reading for Construction, 7th Edition
Page
214
(
230
of
400
)
GO
Copyright
Goodheart-Willcox
Co.,
Inc.
214
Section
4
Reading
Prints
Studio
4,
LLC
Rookwood
BuildingGrou
pLLC
,
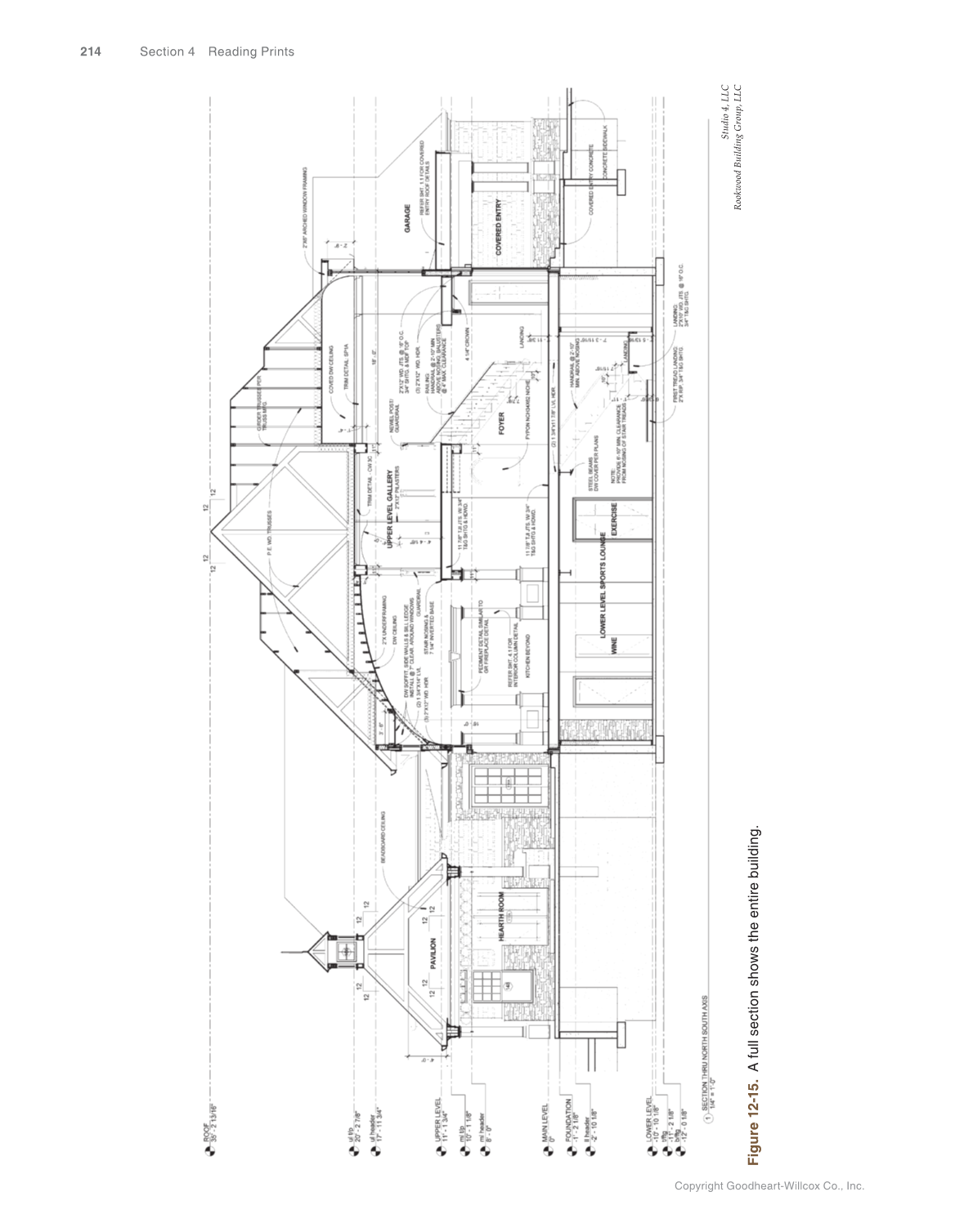
Figure
12-15.
A
f
ull
section
shows
the
entire
building.
Previous Page
Next Page
Resources and Downloads
Help
Close
This book
Author, Example
Collection: Technical / Trades / Technology
Construction
All books
GO
Zoom In
Zoom Out
Contents
Resources
Extract
Help
Printable
Destination page number
Search scope
Search Text