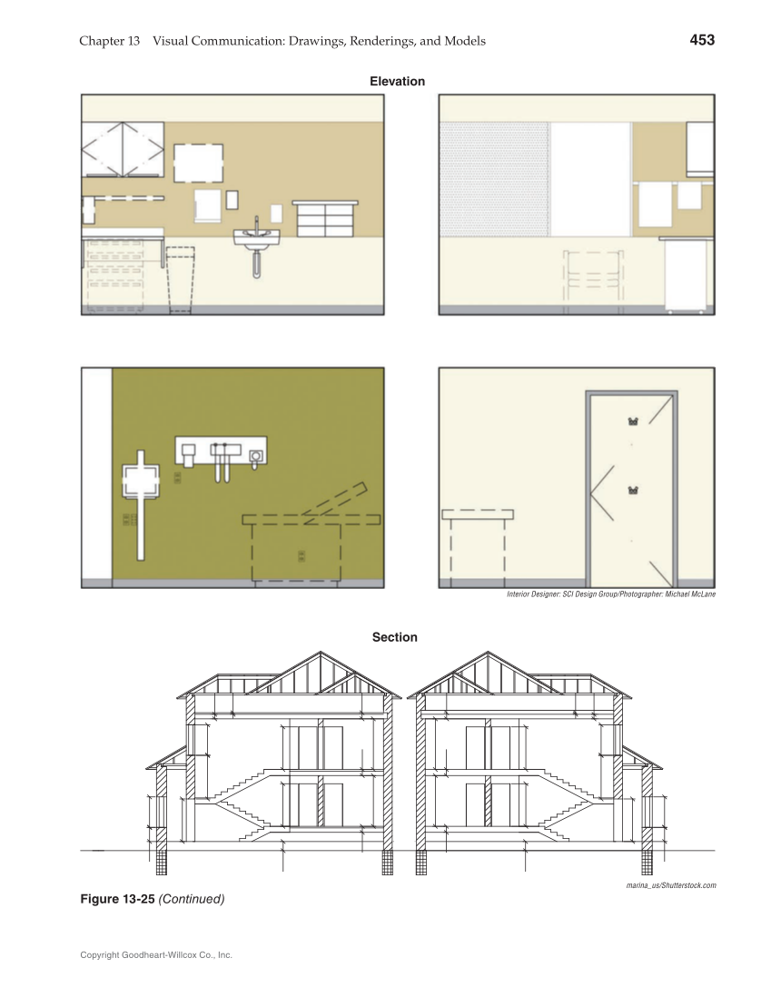
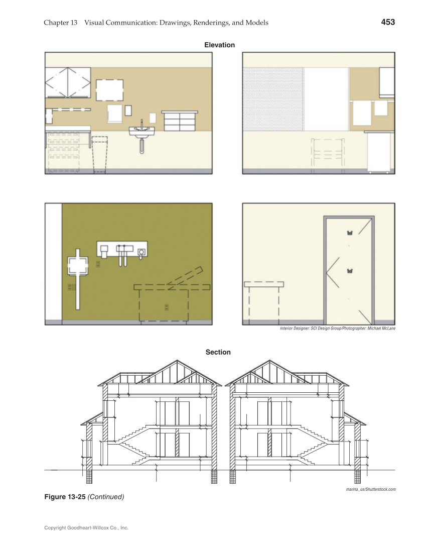
Chapter 13 Visual Communication: Drawings, Renderings, and Models 453 Copyright Goodheart-Willcox Co., Inc. Section Elevation marina_us/Shutterstock.com Figure 13-25 (Continued) Interior Designer: SCI Design Group/Photographer: Michael McLane
Previous Page Next Page