Skip to content
My Bookshelf
Machine Trades Print Reading 7e
Page
285
(
299
of
393
)
GO
Unit
15
Geometric
Dimensioning
and
Tolerancing
285
Copyright
Goodheart-Willcox
Co.,
Inc.
Goodheart-Willcox
Publisher
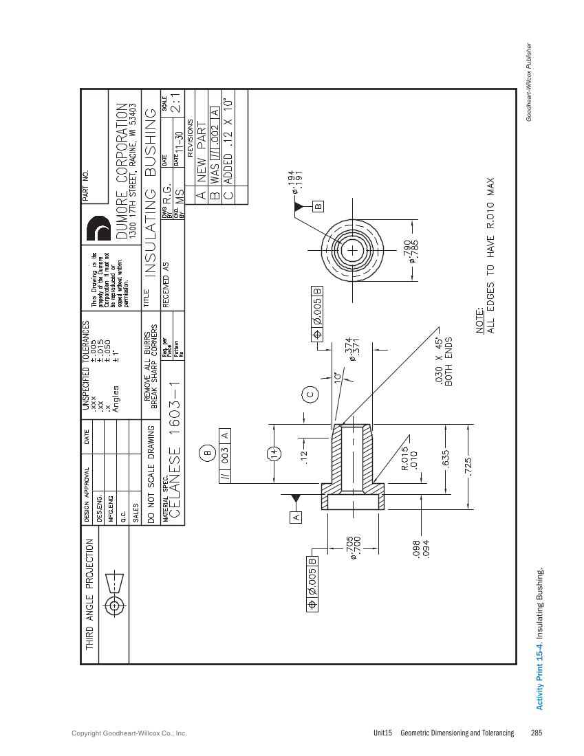
Activity
Print
15
‑
4.
Insulating
Bushing.
Previous Page
Next Page
Help
Close
This book
Author, Example
Machine Trades Print Reading 7e, Online Textbook Suite
All books
GO
Zoom In
Zoom Out
Contents
Extract
Help
Printable
Destination page number
Search scope
Search Text