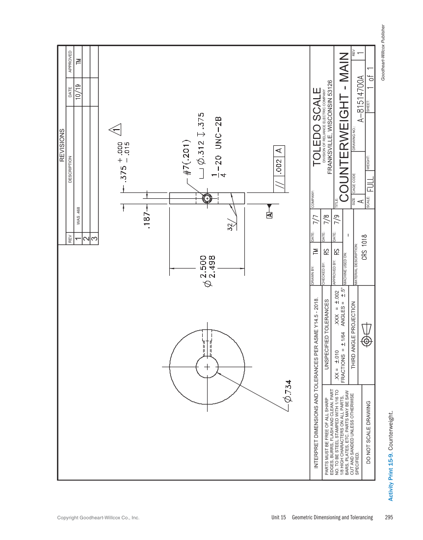
Unit 15 Geometric Dimensioning and Tolerancing 29 5 Copyright Goodheart-Willcox Co., Inc. REV DESCRIPTION DATE 1 2 3 UNSPECIFIED TOLERANCES REVISIONS .XX = .010 ANGLES = .5°MACHINE .XXX = .002 CAGE CODE DRAWING NO.: SIZE SCALE: WEIGHT: SHEET: REV TITLE: COMPANY: THIRD ANGLE PROJECTION MATERIAL DESCRIPTION: USED ON: APPROVED BY: CHECKED BY: DRAWN BY: DATE: DATE: DATE: COUNTERWEIGHT - MAIN FRANKSVILLE, WISCONSIN 53126 TOLEDO SCALE PARTS MUST BE FREE OF ALL SHARP EDGES, BURRS, FLASH AND CLEAN. PART NO. TO BE STEEL STAMPED WITH 1/16 TO 1/8 HIGH CHARACTERS ON ALL PARTS, BARS, PLATES, ETC. PARTS MAY BE SAW CUT AND SANDED UNLESS OTHERWISE SPECIFIED. DO NOT SCALE DRAWING INTERPRET DIMENSIONS AND TOLERANCES PER ASME Y14.5 - 2018. APPROVED DIVISION OF RELIANCE ELECTRIC COMPANY FRACTIONS = 1/64 WAS .468 Goodheart-Willcox Publisher Activity Print 15‑ 9. Counterweight.
Previous Page Next Page