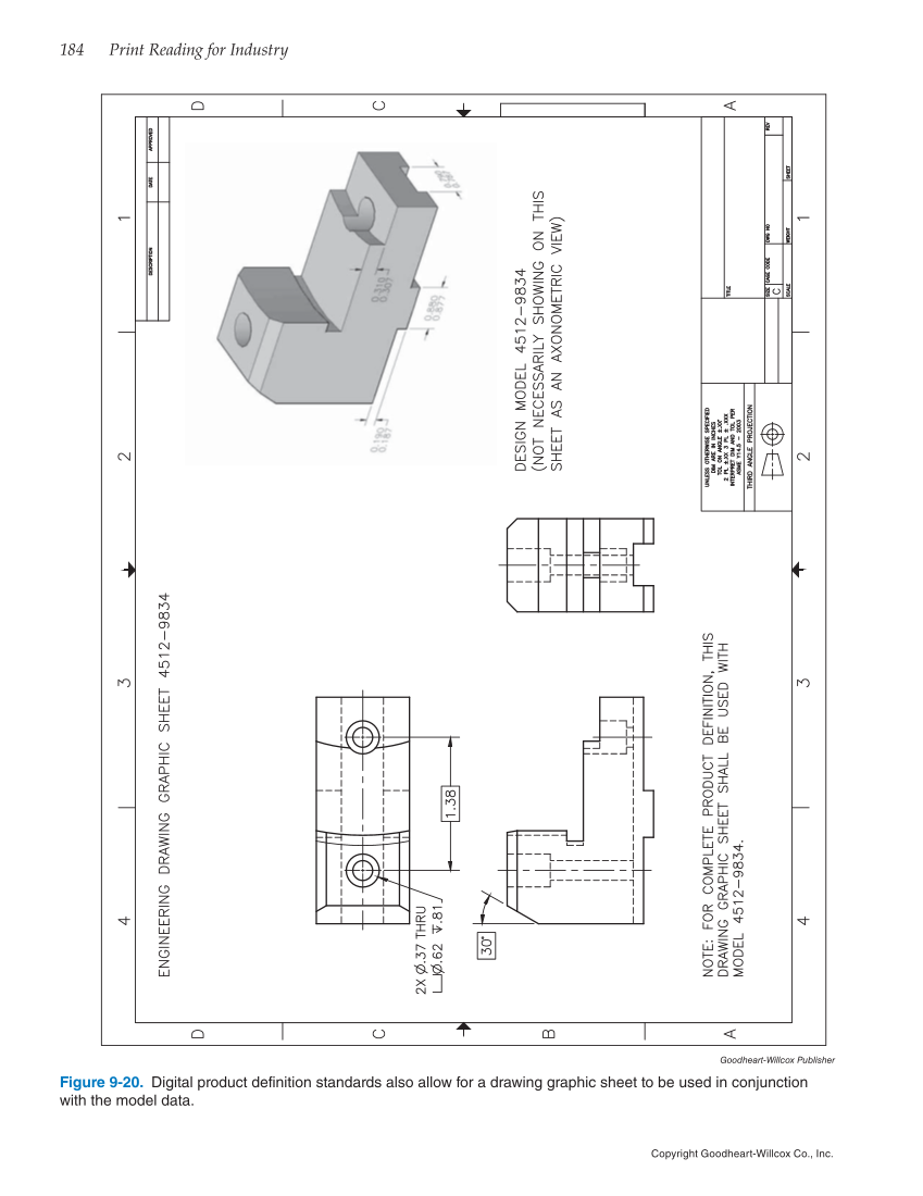
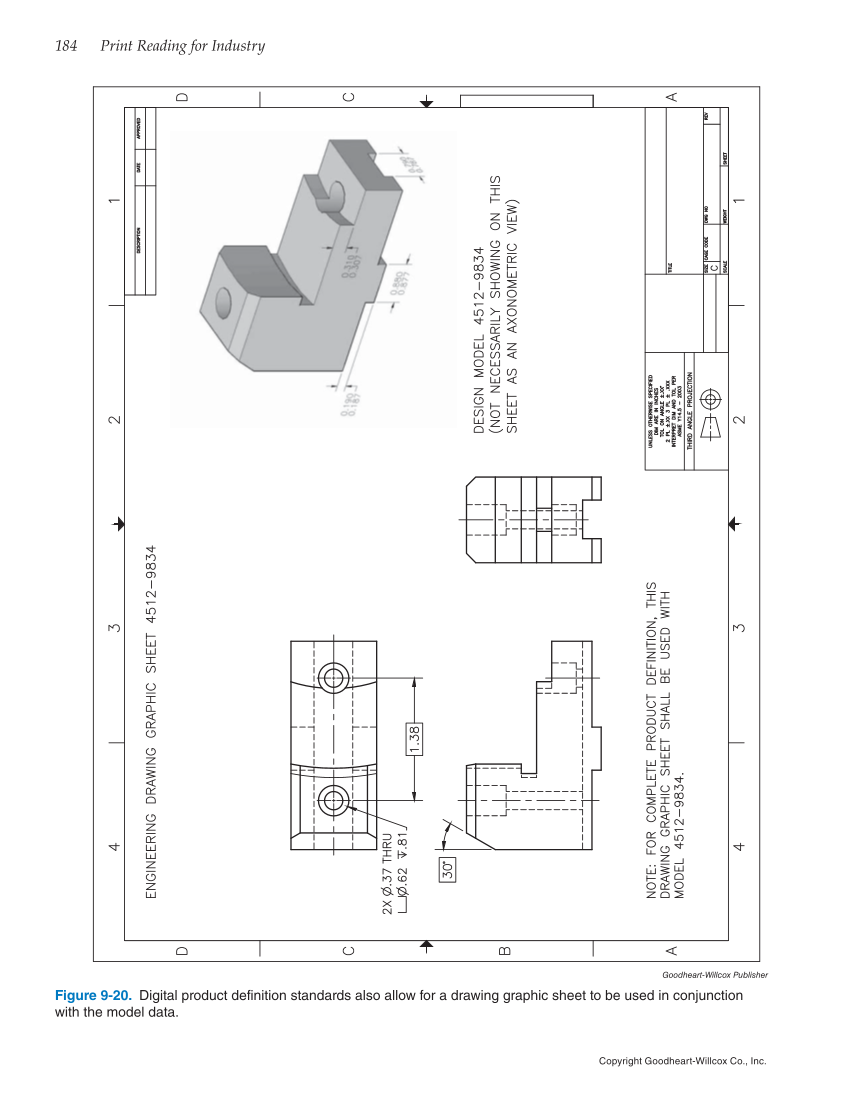
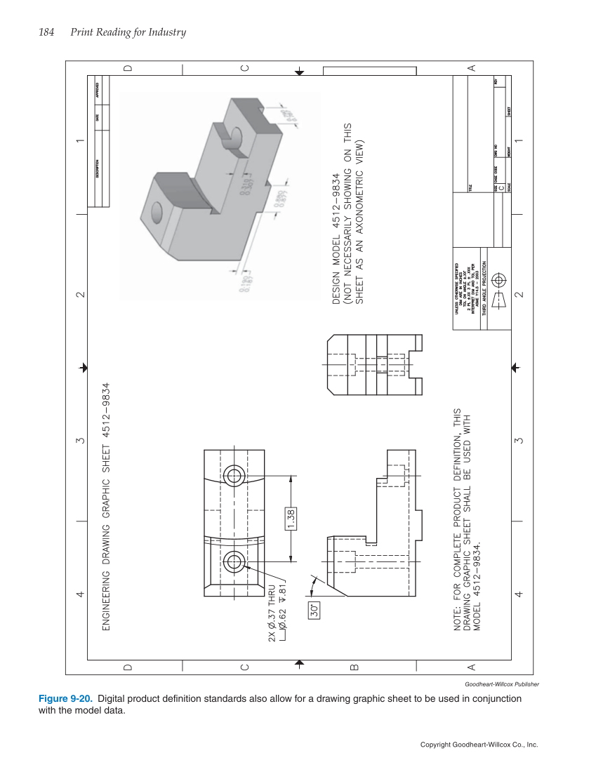
184 Print Reading for Industry Copyright Goodheart-Willcox Co., Inc. Goodheart-Willcox Publisher Figure 9-20. Digital product definition standards also allow for a drawing graphic sheet to be used in conjunction with the model data.
Previous Page Next Page