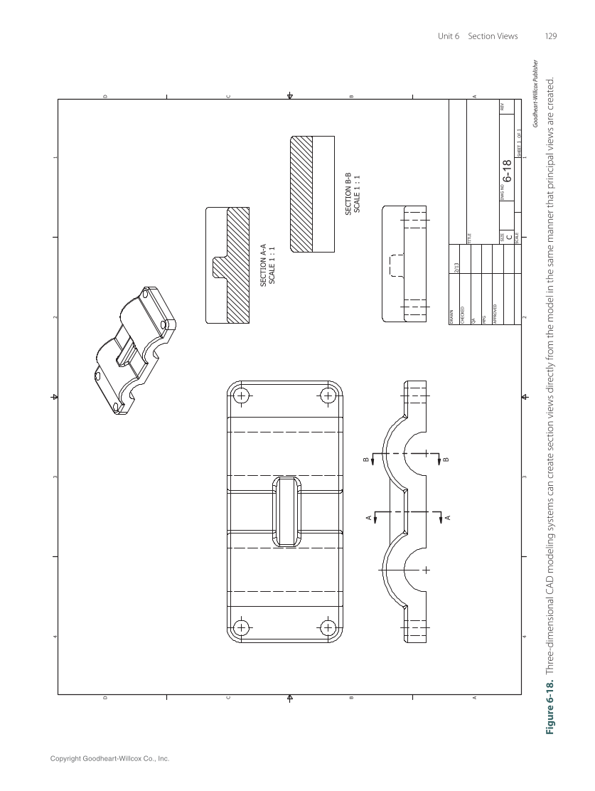
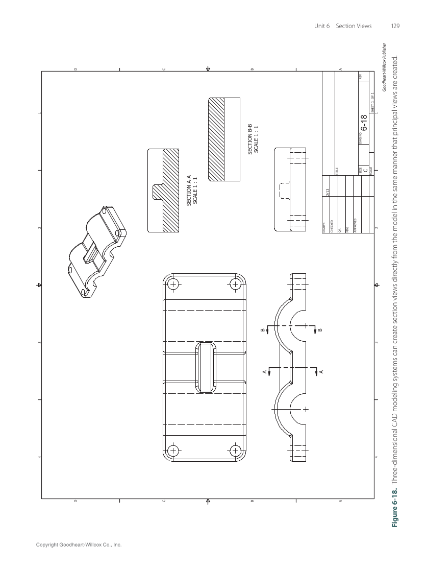
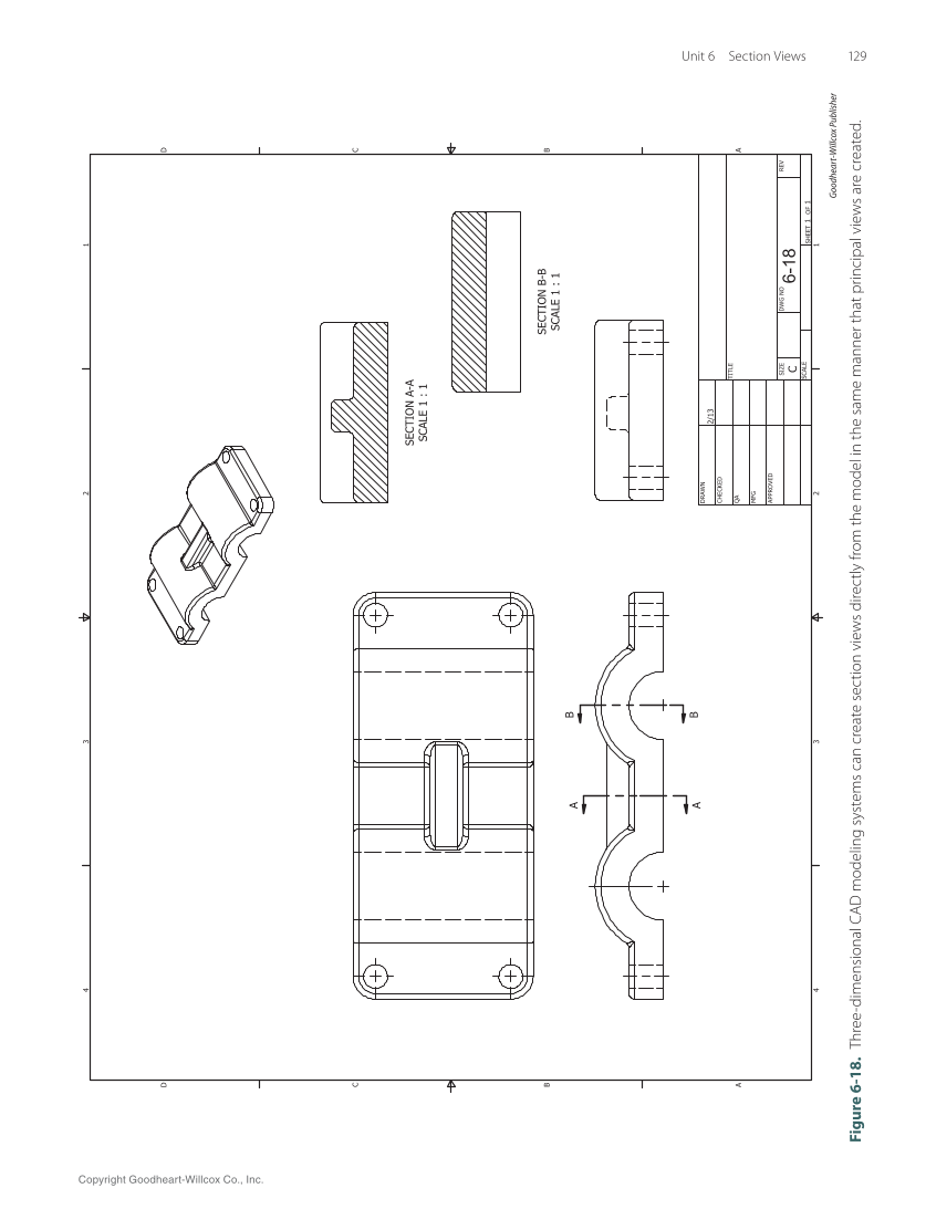
6-18 Goodheart-Willcox Publisher Figur e 6‑18. Three-dimensional CAD modeling systems can create section views directly from the model in the same manner that principal views are created. Copyright Goodheart-Willcox Co., Inc. Unit 6 Section Views 129
Previous Page Next Page