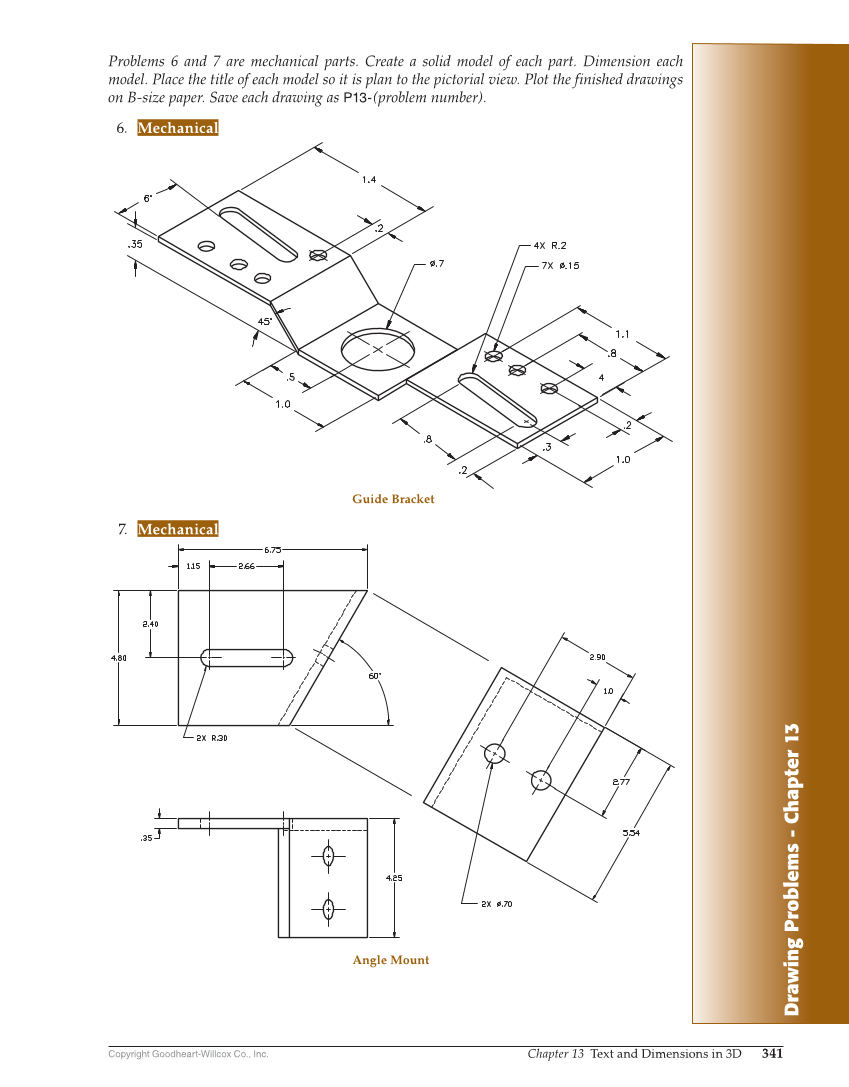
Drawing Problems - Chapter 13 Copyright Goodheart-Willcox Co., Inc. Chapter 13 Text and Dimensions in 3D 341 Problems 6 and 7 are mechanical parts. Create a solid model of each part. Dimension each model. Place the title of each model so it is plan to the pictorial view. Plot the finished drawings on B-size paper. Save each drawing as P13-(problem number). 6. Mechanical 7. Mechanical Guide Bracket Angle Mount
Previous Page Next Page