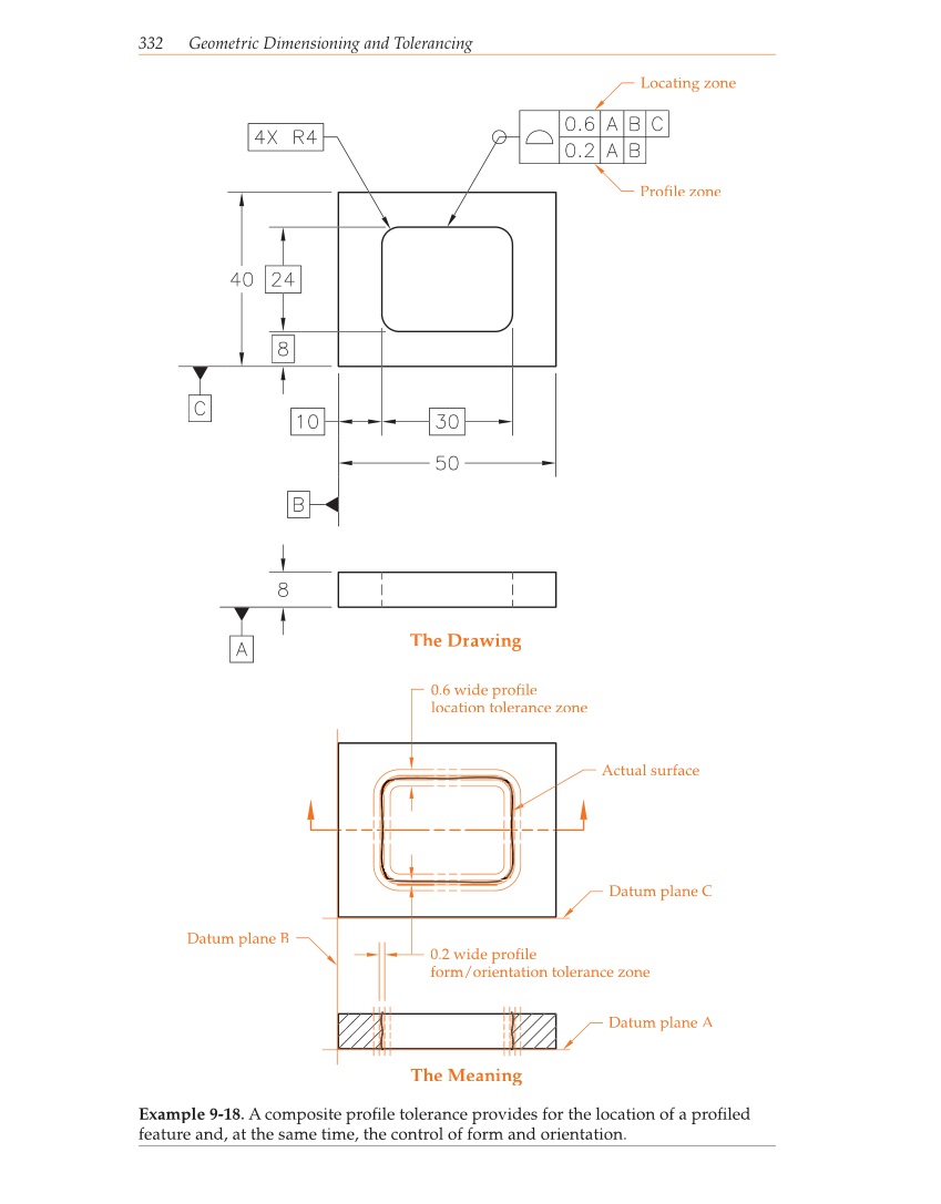
332 Geometric Dimensioning and Tolerancing Locating zone Profile zone Actual surface Datum plane C 0.2 wide profile form/orientation tolerance zone Datum plane A Datum plane B 0.6 wide profile location tolerance zone The Drawing The Meaning Example 9-18. A composite profi le tolerance provides for the location of a profi led feature and, at the same time, the control of form and orientation.
Previous Page Next Page