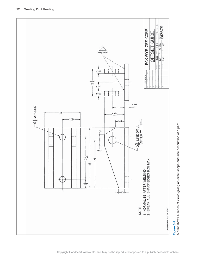
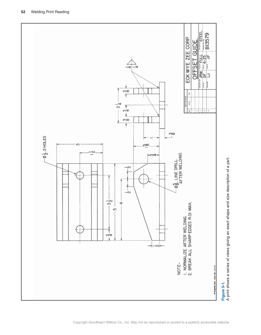
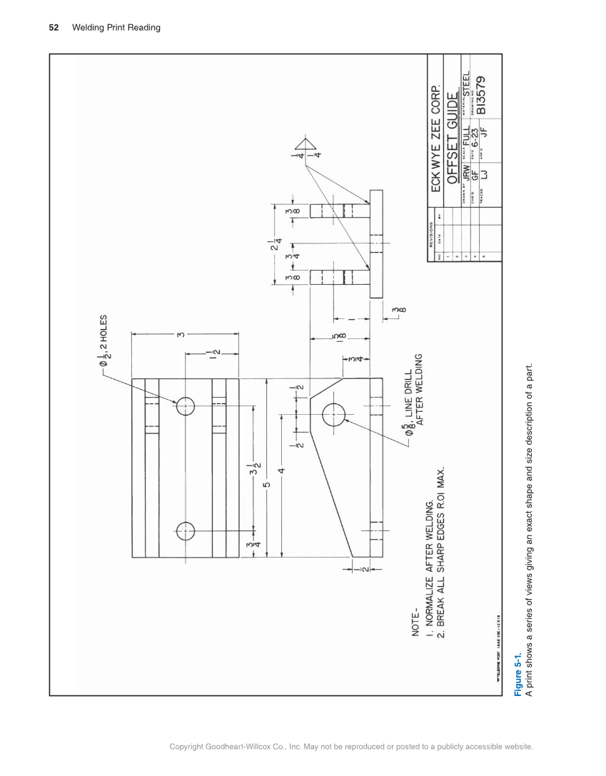
52 Welding Print Reading Copyright Goodheart-Willcox Co., Inc. May not be reproduced or posted to a publicly accessible website. Figure 5-1. A print shows a series of views giving an exact shape and size description of a part.
Previous Page Next Page