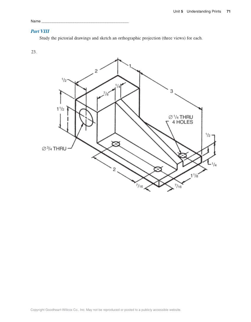
Unit 5 Understanding Prints 71 Name _________________________________________________ Copyright Goodheart-Willcox Co., Inc. May not be reproduced or posted to a publicly accessible website. Part VIII Study the pictorial drawings and sketch an orthographic projection (three views) for each. 23.
Previous Page Next Page