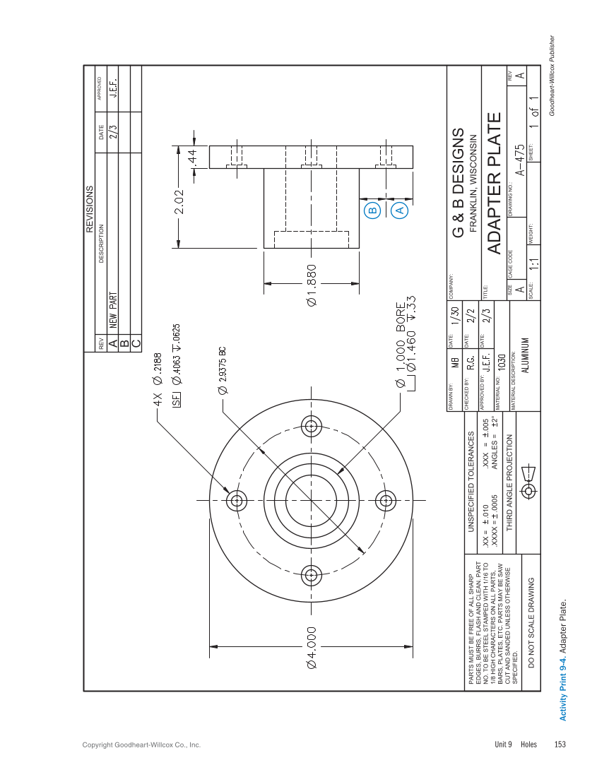
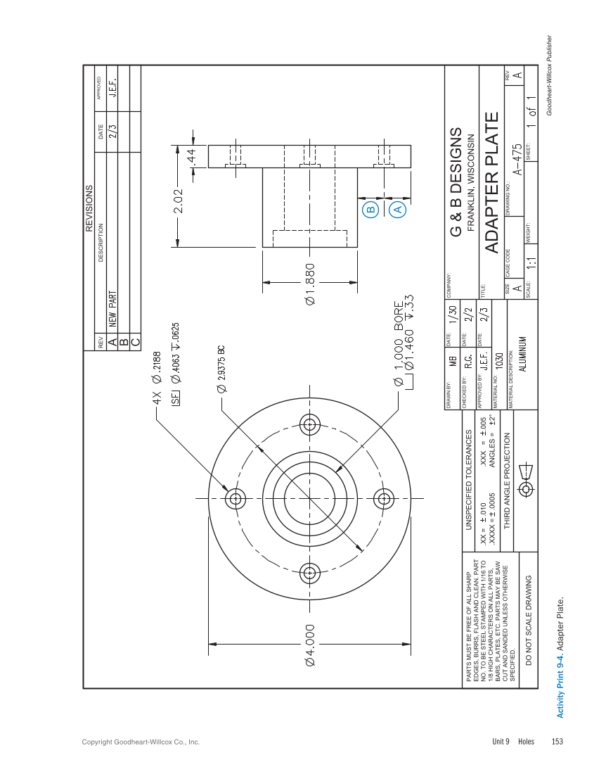
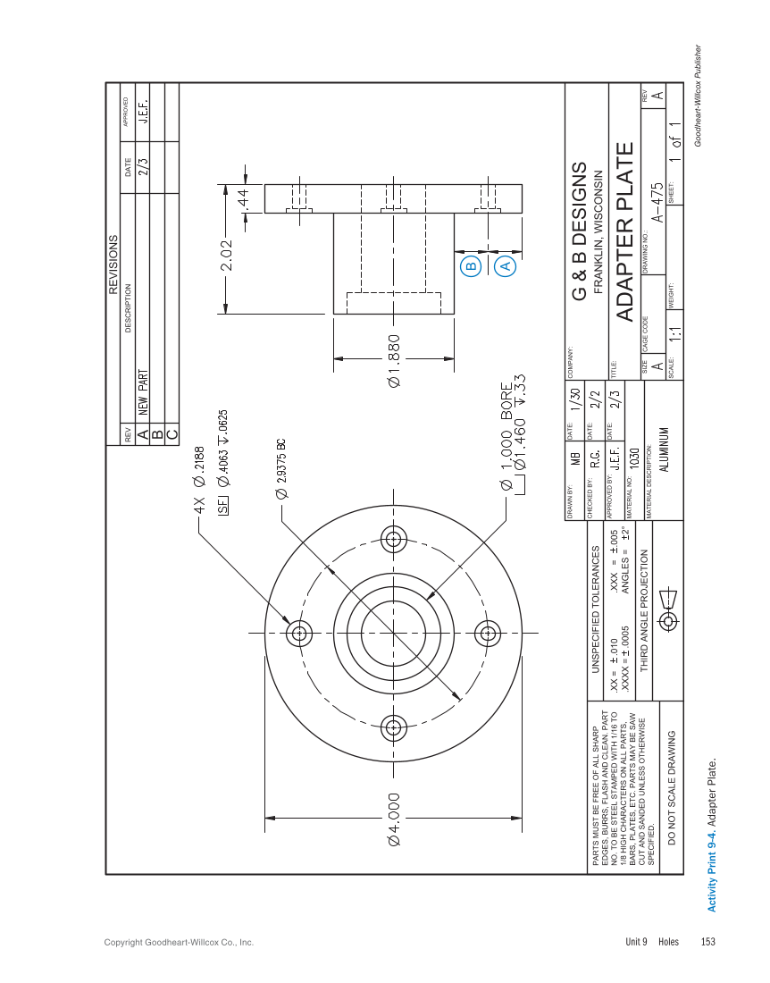
Unit 9 Holes 153 Copyright Goodheart-Willcox Co., Inc. REV DESCRIPTION DATE APPROVED A B C UNSPECIFIED TOLERANCES REVISIONS .XX = .010 ANGLES = .XXX = .005 .XXXX = .0005 CAGE CODE DRAWING NO.: SIZE SCALE: W EIGHT: SHEET: REV TITLE: COMPANY: THIRD ANGLE PROJECTION MATERIAL DESCRIPTION: MATERIAL NO: APPROVED BY: CHECKED BY: DRAWN BY: DATE: DATE: DATE: ADAPTER PLATE FRANKLIN, WISCONSIN G & B DESIGNS PARTS MUST BE FREE OF ALL SHARP EDGES, BURRS, FLASH AND CLEAN. PART NO. TO BE STEEL STAMPED WITH 1/16 TO 1/8 HIGH CHARACTERS ON ALL PARTS, BARS, PLATES, ETC. PARTS MAY BE SAW CUT AND SANDED UNLESS OTHERWISE SPECIFIED. DO NOT SCALE DRAWING B A Goodheart-Willcox Publisher Activity Print 9‑ 4. Adapter Plate.
Previous Page Next Page