Unit 10 Foundation Prints 175
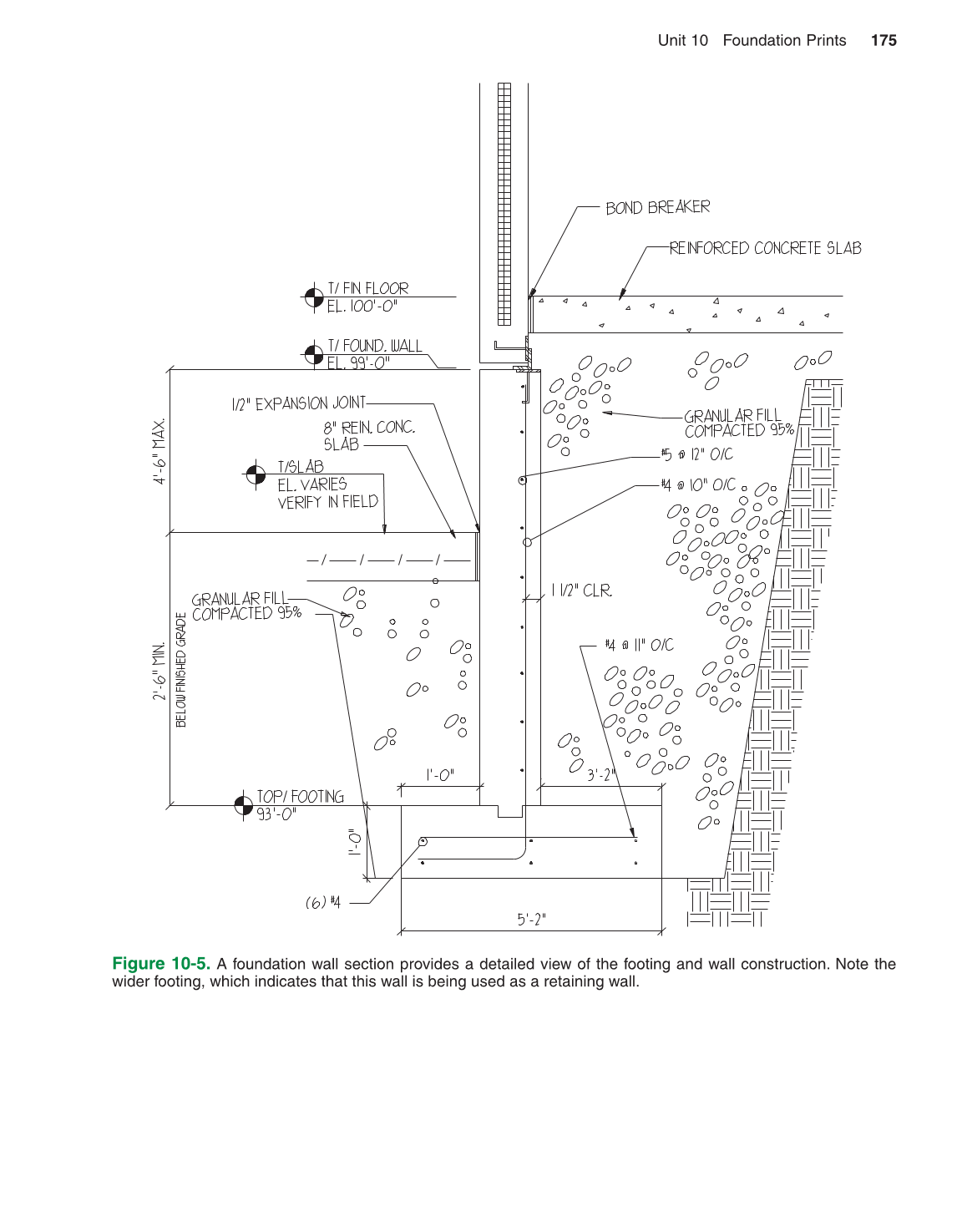
Figure 10-5.
A foundation wall section provides a detailed view of the footing and wall construction. Note the
wider footing, which indicates that this wall is being used as a retaining wall.
Previous Page Next Page