Skip to content
My Bookshelf
Print Reading for Industry, 10th Edition
Page
193
(
209
of
588
)
GO
Unit
9
Dimensioning
193
Copyright
Goodheart-Willcox
Co.,
Inc.
Print
supplied
by
Grayhill,
Inc.
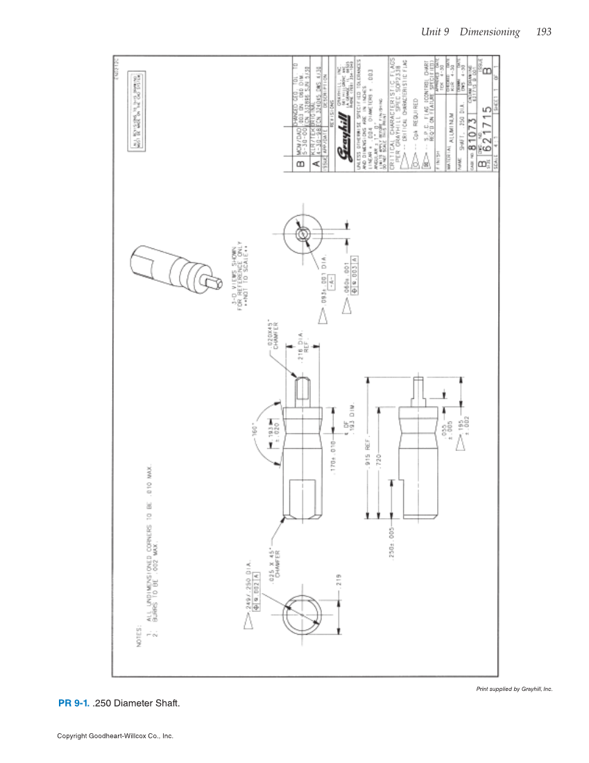
PR
9-1.
.250
Diameter
Shaft.
Previous Page
Next Page
Resources and Downloads
Help
Close
This book
Author, Example
Collection: Technical / Trades / Technology
All books
GO
Zoom In
Zoom Out
Contents
Resources
Extract
Help
Printable
Destination page number
Search scope
Search Text