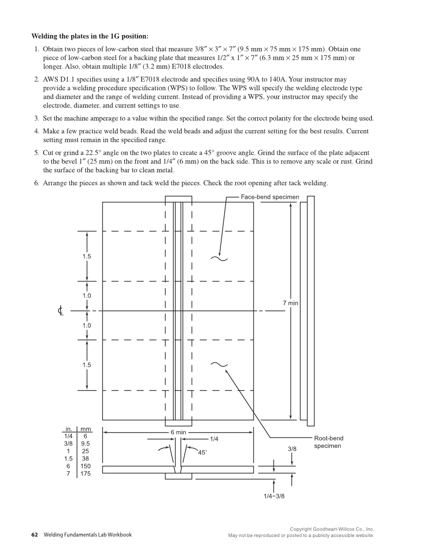
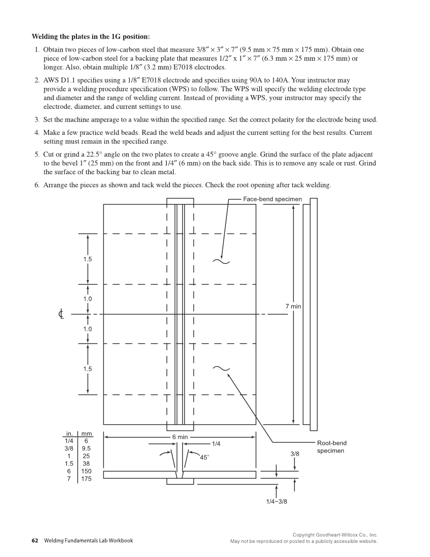
Copyright Goodheart-Willcox Co., Inc. May not be reproduced or posted to a publicly accessible website. 62 Welding Fundamentals Lab Workbook Welding the plates in the 1G position: 1. Obtain two pieces of low-carbon steel that measure 3/8″ × 3″ × 7″ (9.5 mm × 75 mm × 175 mm). Obtain one piece of low-carbon steel for a backing plate that measures 1/2″ x 1″ × 7″ (6.3 mm × 25 mm × 175 mm) or longer. Also, obtain multiple 1/8″ (3.2 mm) E7018 electrodes. 2. AWS D1.1 specifies using a 1/8″ E7018 electrode and specifies using 90A to 140A. Your instructor may provide a welding procedure specification (WPS) to follow. The WPS will specify the welding electrode type and diameter and the range of welding current. Instead of providing a WPS, your instructor may specify the electrode, diameter, and current settings to use. 3. Set the machine amperage to a value within the specified range. Set the correct polarity for the electrode being used. 4. Make a few practice weld beads. Read the weld beads and adjust the current setting for the best results. Current setting must remain in the specified range. 5. Cut or grind a 22.5° angle on the two plates to create a 45° groove angle. Grind the surface of the plate adjacent to the bevel 1″ (25 mm) on the front and 1/4″ (6 mm) on the back side. This is to remove any scale or rust. Grind the surface of the backing bar to clean metal. 6. Arrange the pieces as shown and tack weld the pieces. Check the root opening after tack welding. in. mm 1/4 3/8 1 1.5 6 7 6 9.5 25 38 150 175 1.5 1.0 1.0 1.5 7 min 6 min 1/4 3/8 45° 1/4−3/8 Root-bend specimen Face-bend specimen C
Previous Page Next Page