Skip to content
My Bookshelf
Print Reading for Construction, 6th Edition
Page
162
(
162
of
360
)
GO
162
Section
4
Reading
Prints
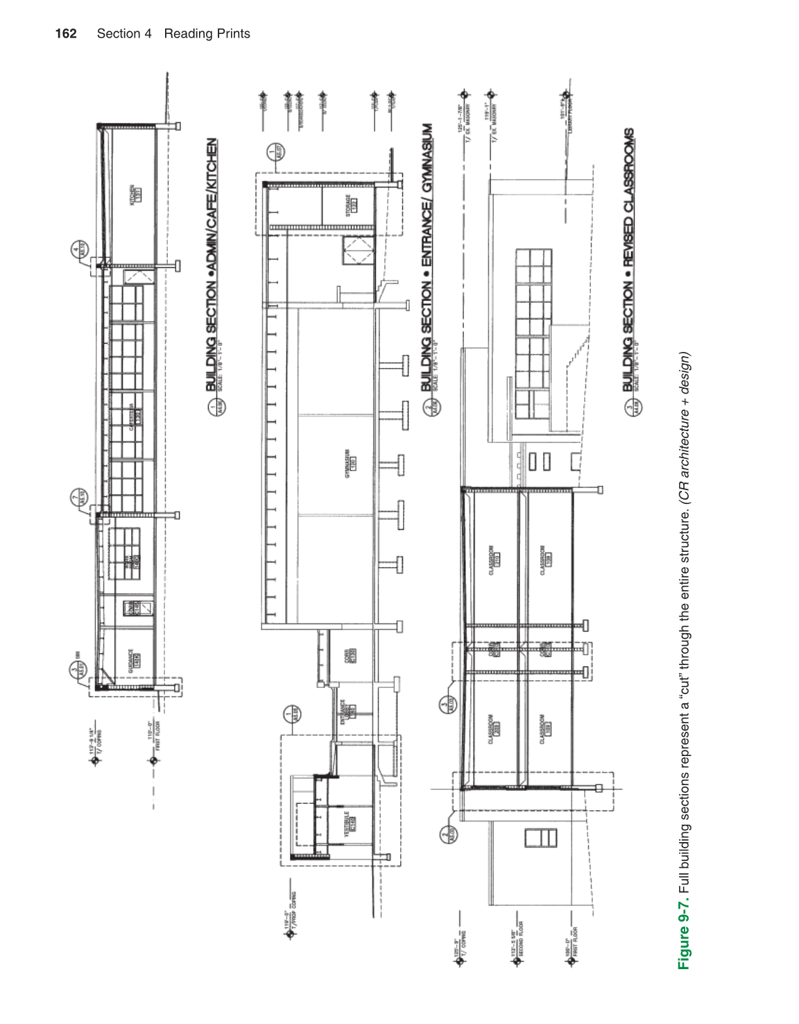
Figure
9-7.
Full
building
sections
represent
a
“cut”
through
the
entire
structure.
(CR
architecture
+
design)
Previous Page
Next Page
Resources and Downloads
Help
Close
This book
Author, Example
Construction
All books
GO
Zoom In
Zoom Out
Contents
Resources
Extract
Help
Printable
Destination page number
Search scope
Search Text