Skip to content
My Bookshelf
Print Reading for Industry, 9th Edition
Page
95
(
95
of
523
)
GO
Unit
5
Multiview
Drawings
95
SHEET
PART
NO.
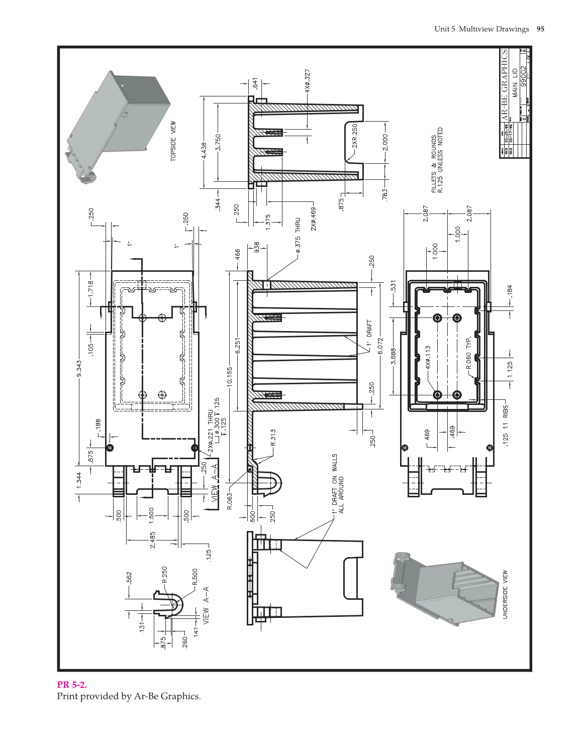
PR
5-2.
Print
provided
by
Ar-Be
Graphics.
Previous Page
Next Page
Resources and Downloads
Help
Close
This book
Author, Example
All books
GO
Zoom In
Zoom Out
Contents
Resources
Extract
Help
Printable
Destination page number
Search scope
Search Text